Condominium Singapore 

Can I Buy ABSD Bank Loan

 

Enquiry Hotline : +65 97738372

The Tre Ver

Home By the River !

Last Updated on 21 DEC 2020

   

100% Sold !

Project Information

 Location  Potong Pasir Ave 1 (D13)
 Site Area  18,711 Sqm / 201,405 Sqft
 Units / Storeys  729 / 19 & 20
 Carpark Capacity  584 + 5 Handicap Lots
 Expected T.O.P.  Est. Feb 2021
 Expected V. Possession  19 Aug 2022
 Tenure  99 years from 28 Mar 2018
 Architect  WOHA Architects Pte Ltd
 Main Contractor  Lian Beng Construction Pte Ltd
 Developer  UOL Group & UIC

The Tre Ver Location Map

(Former Raintree Gardens)

 The Tre Ver New Launch Condo Location Map

  The Tre Ver Price List

Type

Avg PSF

Lo Price

Hi Price

1-Bedroom

NA

Sold

Sold

2-Bedroom

NA

Sold

Sold

 2-BR Premium

NA

Sold

Sold

3-Bedroom

NA

Sold

Sold

3-BR Premium

NA

Sold

Sold

4-Bedroom

NA

Sold

Sold

The Tre Ver Unit Mix

Type

Are(Sqm)

Area(Sqft)

No of Units

1-Bedroom

45-47

484-506

159

2-Bedroom

57-74 

614-797

381

3-Bedroom

92-102

990-1098

162

4-Bedroom

123-127

1324-1367

27

Total

   

 729

The Tre Ver Photo

The Tre Ver New Launch Condominium

The Tre Ver New Launch Condominium

The Tre Ver New Launch Condominium

The Tre Ver Condominium

The Tre Ver Condominium

The Tre Ver Condominium

The Tre Ver Condominium

The Tre Ver River View

Showflat Photo

The Tre Ver Showflat Photo

The Tre Ver Showflat Photo

The Tre Ver Showflat Photo

The Tre Ver Showflat Photo

The Tre Ver Showflat Photo

The Tre Ver Showflat Photo


We are Developer's Sale Team.
No Commission Required.

我们是开发商的销售团队

免佣金

Book an appointment with us for   Showflat Viewing

Eric Tan @ 97881579 or

Cindy Ng @ 97738372 

OR

Don't miss this great opportunity!
Welcome to The Tre Ver !
In accordance with DNC and PDPA regulations, by submitting this form you are also giving us consent to contact you via phone (Call/SMS/WhatsApp) and email with the information you have provided below.



 Site Plan

The Tre Ver Site Plan

100 % Sold!

Available Units

Blk

Units No.

Room

Type

Sqm

Sqft

Remarks

64

20-20

1 BR

A2

46

495

 Sold 

64

20-21

1 BR

A2

46

495

Sold

58

20-37

1 BR

A3

46

495

Sold

The Tre Ver Floor Plan

1 BR Type A1  45 Sqm / 484 Sqft

The Tre Ver Floor Plan

1 BR Type A2  46 Sqm / 495 Sqft

The Tre Ver Floor Plan

1 BR Type A2P  46 Sqm / 495 Sqft

The Tre Ver Floor Plan

1 BR Type A3  46 Sqm / 495 Sqft

The Tre Ver Floor Plan

1 BR Type A4  47 Sqm / 506 Sqft

The Tre Ver Floor Plan

1 BR Type A4P  47 Sqm / 506 Sqft

The Tre Ver Floor Plan


2 BR Type B1  57 Sqm / 614 Sqft

The Tre Ver Floor Plan

2 BR Type B2  58 Sqm / 624 Sqft

The Tre Ver Floor Plan

2 BR Type B2P  58 Sqm / 624 Sqft

The Tre Ver Floor Plan

2 BR Type B3  60 Sqm / 646 Sqft

The Tre Ver Floor Plan

2 BR Type B3P  60 Sqm / 646 Sqft

The Tre Ver Floor Plan

2 BR Type B4  59 Sqm / 635 Sqft

The Tre Ver Floor Plan

2 BR Type B4P  59 Sqm / 635 Sqft

The Tre Ver Floor Plan

2 BR Type B5  64 Sqm / 689 Sqft

The Tre Ver Floor Plan

2 BR Type B6  65 Sqm / 700 Sqft

The Tre Ver Floor Plan

2 BR Type B6P  65 Sqm / 700 Sqft

The Tre Ver Floor Plan

2 BR Type B7  69 Sqm / 743 Sqft

The Tre Ver Floor Plan

2 BR Type B7P  69 Sqm / 743 Sqft

The Tre Ver Floor Plan

2 BR Type B8  70 Sqm / 753 Sqft

The Tre Ver Floor Plan

2 BR Type B8P  70 Sqm / 753 Sqft

The Tre Ver Floor Plan

2 BR Type B9  74 Sqm / 797 Sqft

The Tre Ver Floor Plan


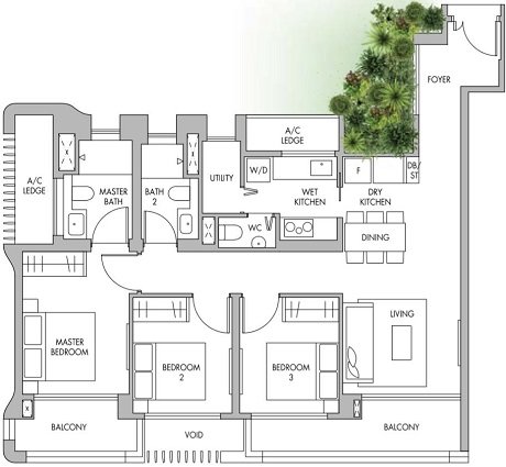
3 BR Type C1  94 Sqm / 1,012 Sqft

The Tre Ver Floor Plan

3 BR Type C2  98 Sqm / 1,055 Sqft

The Tre Ver Floor Plan

3 BR Type C2P  98 Sqm / 1,055 Sqft

The Tre Ver Floor Plan

3 BR Type C3  102 Sqm / 1,098 Sqft

The Tre Ver Floor Plan

3 BR Type C3P  102 Sqm / 1,098 Sqft

The Tre Ver Floor Plan

3 BR Type C4  102 Sqm / 1,098 Sqft

The Tre Ver Floor Plan

3 BR Type C5  103 Sqm / 1,109 Sqft

The Tre Ver Floor Plan

3 BR Type C5P  103 Sqm / 1,109 Sqft

The Tre Ver Floor Plan

3 BR Type C6  102 Sqm / 1,098 Sqft

The Tre Ver Floor Plan

3 BR Type C6P  102 Sqm / 1,098 Sqft

The Tre Ver Floor Plan 


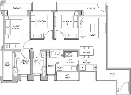
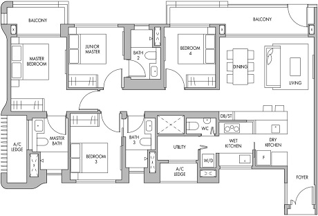
4 BR Type D1  124 Sqm / 1,335 Sqft

The Tre Ver Floor Plan

4 BR Type D1P  124 Sqm / 1,335 Sqft

The Tre Ver Floor Plan

4 BR Type D2  128 Sqm / 1,378 Sqft

The Tre Ver Floor Plan

4 BR Type D2P  128 Sqm / 1,378 Sqft

The Tre Ver Floor Plan

EdgeProp Write Up on The Tre Ver

The Tre Ver EdgeProp Write Up

The Tre Ver EdgeProp Write Up



Other New Launch Condominium

Leasehold Condo

Kent Ridge Hill Residences @ D05

http://www.condominiumsingapore.sg/Kent-Ridge-Hill-Residences.html

Twin VEW @ D05

http://www.condominiumsingapore.sg/Twin-VEW.html

Whistler Grand @ D05

http://www.condominiumsingapore.sg/Whistler-Grand.html

Park Colonial @ D13

http://www.condominiumsingapore.sg/Park-Colonial.html

Parc Esta @ D14

http://www.condominiumsingapore.sg/Parc-Esta.html

The Jovell @ D17

http://www.condominiumsingapore.sg/The-Jovell.html

The Tapestry @ D18

http://www.condominiumsingapore.sg/The-Tapestry.html 

Treasure At Tampines @ D18

http://www.condominiumsingapore.sg/Treasure-at-Tampines.html

Affinity At Serangoon @ D19

http://www.condominiumsingapore.sg/Affinity-At-Serangoon.html

Riverfront Residences @ D19

http://www.condominiumsingapore.sg/Riverfront-Residences.html

    The Florence Residences @ D19

http://www.condominiumsingapore.sg/The-Florence-Residences.html

JadeScape @ D20

http://www.condominiumsingapore.sg/JadeScape.html

Freehold Condo

RV Altitude @ D09

http://www.condominiumsingapore.sg/RV-Altitude.html

Fyve Derbyshire @ D11

http://www.condominiumsingapore.sg/Fyve-Derbyshire.html

Jui Residences @ D12

http://www.condominiumsingapore.sg/Jui-Residences.html

Arena Residences @ D14

http://www.condominiumsingapore.sg/Arena-Residences.html

The Navian @ D14

http://www.condominiumsingapore.sg/The-Navian.html

Casa Al Mare @ D18

http://www.condominiumsingapore.sg/Casa-Al-Mare.html



Call Eric Tan @ 97881579 or

Cindy Ng @ 97738372 for a

Non-obligation Discussion 

Freehold


陈 成 稳

Eric Tan

R029858E

Contact No.

97881579


黄 美 娟

Cindy Ng

R057104D

Contact No.

97738372


Showflat Viewing by Appointment only

参观示范单位敬请预约