Condominium Singapore |
||||||||||||||||||||||||||||||||||||||||||||||||||||||||||||||||||||||||||||||||||||||||||||||||||||||
Fully Sold
Project Information
The Garden Residences Location
Map
The Garden Residences Pricing
The Garden Residences Unit Mix
The Garden Residences Videos The Garden Residences Fly Through The Garden Residences Smart Home
Showflat Open for Viewing and Booking We are Developer's Sale Team No Commission Required 我们是开发商的销售团队 免佣金 Call Eric Tan @ 97881579 for More Details OR
Review of The Garden Residences Why Buy The Garden Residences? Quality Homes – Only 613 units - Developed by established developers , Keppel Land and Wing Tai Asia Close proximity to Schools - Within 1 KM are Rosyth School and International school - Lycee Francais De Singapour Excellent Convenience - Near to Chomp Chomp Food Centre, Serangoon Garden Market and Serangoon Gardens Country Club - In the vicinity are Nex Mall, Serangoon Community Club and Serangoon Stadium Good Connectivity – Connected to major expressways like CTE, TPE and PIE 1 year free shuttle bus service to Serangoon MRT station Enjoy unblocked views of Serangoon Gardens landed estate for many units 55 facilities including 75m swimming pool, tennis court, The Boardwalk, 24-hr gym and gourmet kitchen All of the units are
North-South orientation Well-designed space and practical layout, all master bedroom allows for a King size bed Each unit comes with shoe rack, additional storage and pole system wardrobe in the bedrooms which allows for flexi adjustable shelving Enjoy the convenience of living in a Smart Home and a Smart Community The Garden Residences Site Plan
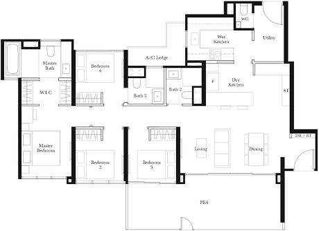
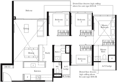
The Garden Residences Floor Plan 1 BR Type A1-P 44 Sqm / 474 Sqft 1 BR Type A1 42 Sqm / 452 Sqft 1 BR Type A2-P 43 Sqm / 463 Sqft 1+Study Type A3S-P 51 Sqm / 549 Sqft 1+Study Type A3S 48 Sqm / 517 Sqft 2 BR Type B1-P 62 Sqm / 667 Sqft 2 BR Type B1 57 Sqm / 614 Sqft | ||||||||||||||||||||||||||||||||||||||||||||||||||||||||||||||||||||||||||||||||||||||||||||||||||||||